




Plot for sale
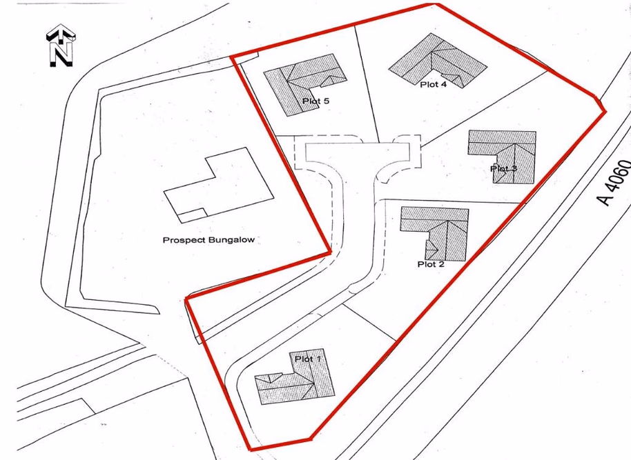
BUILDING PLOTS - DEVELOPMENT | Outline Planning Permission at Prospect Bungalow, Cwm Blacks Merthyr Tydfil CF48 4AJ (5 Detached Dwellings)
Plot for sale
Description
BUILDING PLOTS - DEVELOPMENT | Outline Planning Permission at Prospect Bungalow, Cwm Blacks Merthyr Tydfil CF48 4AJ (5 Detached Dwellings)
Contact Agent
Smart Picks — Professionals Relevant to This Land
Based on this property's key features, here are the specialists you may want to consult as part of your due diligence: land agents, rural solicitors, planning consultants and rics surveyors.

Land Agents
Essential for navigating the land market, finding buyers, and securing the best price.

Rural Solicitors
Significant investment (£300K+) requires legal expertise for conveyancing, title checks, and transaction security.

Planning Consultants
Planning-sensitive site needs expert guidance for applications and development strategy.

RICS Surveyors
Prime or productive land requires professional valuation to ensure fair market value.
Location
Residential Development at Slip Road